아래 태양광 분양 건 모두 분양 완료 됐습니다.
진심으로 감사합니다.




아래 태양광 분양 건 모두 분양 완료 됐습니다.
진심으로 감사합니다.
■ 전라북도 무주군 적상면 삼유리
태양광 발전소 100kW급 5구좌 분양
1. 용 량 : 99.71kW × 5구좌
2. 지 목 : 답
2. 평 수 : 1개소당 약 350평
3. 모 듈 : 현대 양면 590W 국내산 2등급 모듈
4. 인버터 : 한화 50kW 인버터 × 2대
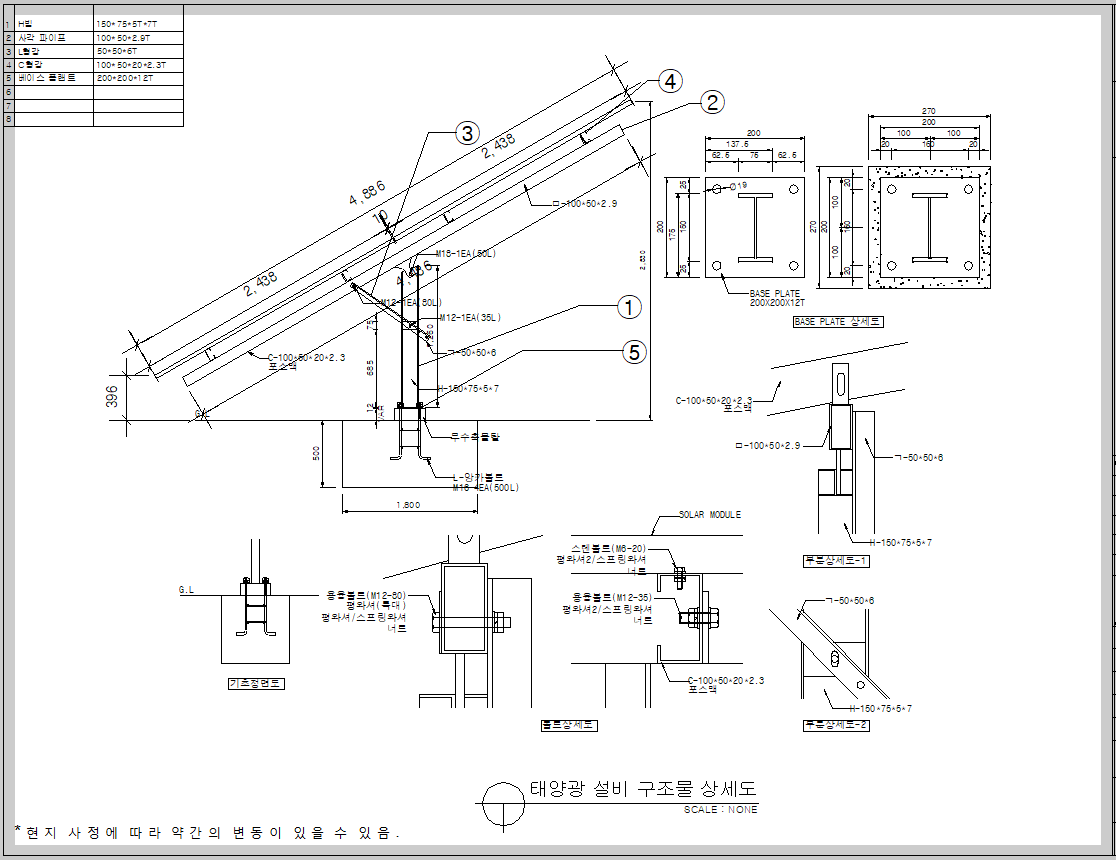
★ 5. 구조물 : 고정식 콘크리트 기초 (용융아연도금 및 포스맥)
=> 아래 상세 도면 확인 부탁드립니다.
6. 현재 토목공사 진행 중 / 공사 착공 준비
=> 공사계획신고 완료
7. 2022년 11월 중 사용 전 검사 진행!!
개발행위허가 완료
한전선로용량 확보
주민민원 없음
[ 분양 금액 ]
1) 계약금 (계약시) : 5,000 만원
계약 이행 보증보험증권 발행
2) 중도금 (협의 / 모듈 인버터 자재 입고 시) : 5,000만원
3) 잔금(사용전 검사 후 대출) 13,000만원
4) 총 23,000만원
한전 계통연계비 포함
농지전용부담금 포함
취등록세 별도
2022년 11월 중 사용 전 검사 진행!!
대출 가능 금액과 계약 조건은
수분양자 신용도 및 자금 상황에 따라 달라질수 있습니다.
언제든지 궁금하신 사항은 연락주세요
대표 문의 ) 010 4667 7551
■ 현재 100kW급 × 4개소 분양 완료
=> 100kW급 1개소 [ 김진란 태양광발전소 ] 남아 있습니다.
아래 도면 참고 부탁드립니다.
■ 발전사업허가증 및 개발행위허가 완료


■ 공사계획 신고수리 확인증


■ 무주군 적상면 현장 도면













■ 무주군 적상면 현장 사진










■ 무주군 적상면 현장 지도








아래 태양광 분양 건 모두 분양 완료 됐습니다.
진심으로 감사합니다.
■ 전라북도 무주군 적상면 삼유리
태양광 발전소 100kW급 5구좌 분양
1. 용 량 : 99.71kW × 5구좌
2. 지 목 : 답
2. 평 수 : 1개소당 약 350평
3. 모 듈 : 현대 양면 590W 국내산 2등급 모듈
4. 인버터 : 한화 50kW 인버터 × 2대
★ 5. 구조물 : 고정식 콘크리트 기초 (용융아연도금 및 포스맥)
=> 아래 상세 도면 확인 부탁드립니다.
6. 현재 토목공사 진행 중 / 공사 착공 준비
=> 공사계획신고 완료
7. 2022년 11월 중 사용 전 검사 진행!!
개발행위허가 완료
한전선로용량 확보
주민민원 없음
[ 분양 금액 ]
1) 계약금 (계약시) : 5,000 만원
계약 이행 보증보험증권 발행
2) 중도금 (협의 / 모듈 인버터 자재 입고 시) : 5,000만원
3) 잔금(사용전 검사 후 대출) 13,000만원
4) 총 23,000만원
한전 계통연계비 포함
농지전용부담금 포함
취등록세 별도
2022년 11월 중 사용 전 검사 진행!!
대출 가능 금액과 계약 조건은
수분양자 신용도 및 자금 상황에 따라 달라질수 있습니다.
언제든지 궁금하신 사항은 연락주세요
대표 문의 ) 010 4667 7551
■ 현재 100kW급 × 4개소 분양 완료
=> 100kW급 1개소 [ 김진란 태양광발전소 ] 남아 있습니다.


🔔 태양광 발전소 추가 분양 정보
1. 개발행위허가 완료
2. 한전선로용략 확보
3. 9월 중 착공 진행
■ 전북 무주군 무주읍 태양광 발전소 100kW급 분양
(공사 계획 신고 완료)
상세 태양광 발전소 분양 정보 : 아래 링크 클릭 >>
https://blog.naver.com/chlxotlr81/222846051970
태양광 발전소 100kW급 분양 : 공사계획신고 완료 [ 전북 무주군 무주읍 현장 ]
■ 전라북도 무주군 무주읍 태양광 발전소 100kW급 분양 1. 용 량 : 99.71kW 2. 지 목 : 답 2. 평 수 : ...
blog.naver.com

🔔 태양광 발전소 추가 분양 정보
1. 개발행위허가 완료
2. 한전선로용략 확보
3. 9월 중 착공 진행
■ 전북 무주군 적삼면 태양광 발전소 30kW급
(공사 계획 신고 완료)
상세 태양광 발전소 분양 정보 : 아래 링크 클릭 >>
https://blog.naver.com/chlxotlr81/222847591782
태양광 발전소 30kW급 분양 : 공사계획신고 완료 [ 전북 무주군 무주읍 현장 ]
■ 전라북도 무주군 무주읍 태양광 발전소 30kW급 분양 1. 용 량 : 30.68kW 2. 지 목 : 답 2. 평 수 : 약...
blog.naver.com
긴 글 읽어 주셔서 감사합니다.
'RPS 태양광 발전사업 정보' 카테고리의 다른 글
| 태양광 발전사업 오해와 진실 (0) | 2022.09.20 |
|---|---|
| 윤석열 정부 재생에너지 정책 및 태양광 미래는 어떻게 될까요 (1) | 2022.09.17 |
| 재생에너지 및 태양광 확대 속도조절 업계 불만 고조 기사 내용 (2) | 2022.09.12 |
| 태풍 발생 시 태양광 발전소 안전관리 방법 (2) | 2022.09.09 |
| 발전효율 저하없이 모듈색 다양화 (0) | 2022.08.25 |
댓글